FERRIERA DI BUTTIGLIERA ALTA

Buttigliera Alta (Torino)

Rif: 1VN25
Condividi Linkedin Whatsapp Stampa
€ 125.000
Vendita
Locale commerciale
92 Mq
1 vano
Classe energetica A4
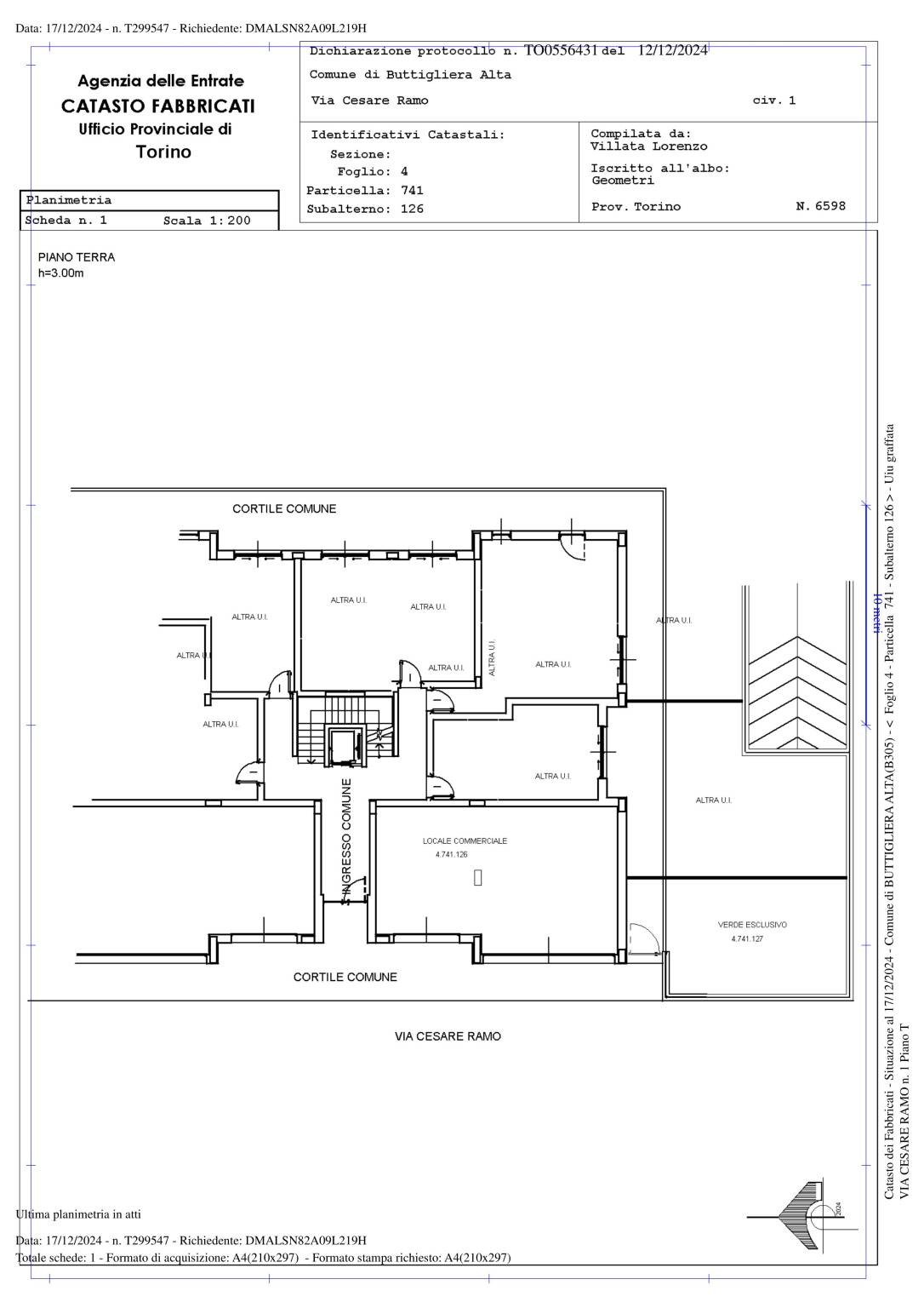
VENDESI LOCALE COMMERCIALE - ANCHE USO UFFICIO - AL PIANO TERRA DEL NUOVISSIMO CONDOMINIO DI VIA CESARE RAMO,1
IN PROSSIMITA' DELLA COSTRUENDA FERMATA DELLA STAZIONE FERROVIARIA DI FERRIERA COMPOSTO DA
LOCALE OPEN SPACE E BAGNO DA PERSONALIZZARE CON FINITURE DI PREGIO DA CAPITOLATO.
DUE AMPIE VETRINE SU PARCHEGGIO RASO TERRA, FRONTE STRADA, CON 10 POSTI AUTO IN USO ESCLUSIVO.
SPAZIO VERDE PERTINENZIALE CON AFFACCIO SULLA NUOVA PIAZZA PEDONALE.
RISCALDAMENTO AUTONOMO CON POMPA DI CALORE E VMC.
CLASSE ENERGETICA: A4
POSSIBILITA' DI ABBINARE ALL'ACQUISTO BOX AUTO AL PIANO INTERRATO AL PREZZO DI Eu.22.000 + IVA

Dettaglio immobile

Contratto Vendita
Rif 1VN25
Prezzo € 125.000
Provincia Torino
Comune Buttigliera Alta
Indirizzo Via Cesare Ramo 1
Superficie 92 mq
Vani 1
Classe energetica A4 (DL 90/2013)
EPgl,nren 324,61 kwh/m2 anno
Riscaldamento autonomo
Condizioni nuova costruzione
Ascensore no

Consistenze

Descrizione Superficie Sup. comm.
Principali
Negozio - piano terra 92 Mq 92 Mqc
Totale 92 Mqc

Planimetrie

Richiedi maggiori informazioni

Autorizzazione al trattamento dei dati personali+
Dichiaro di aver letto l'informativa sulla privacy ed accetto le condizioni d'utilizzo del servizio.
Riempi il campo con il codice riportato nell'immagine*
Codice Captcha
FIAIP
Chiamaci Contattaci